Город
Сысерть
Площадь
127 м2
Год
2024 год
Услуги
Дизайн-проект

Игорь и Дарья


О проекте
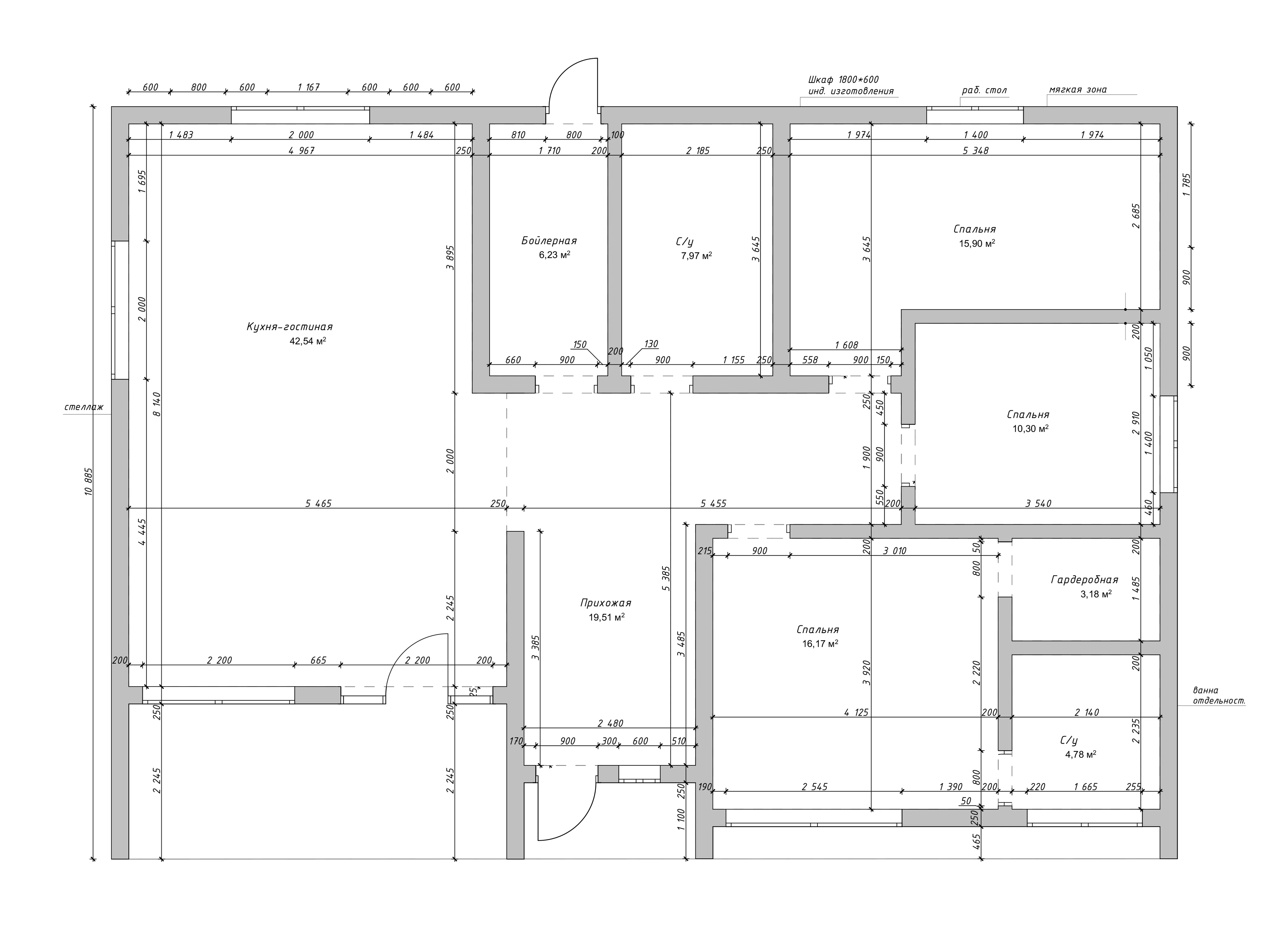
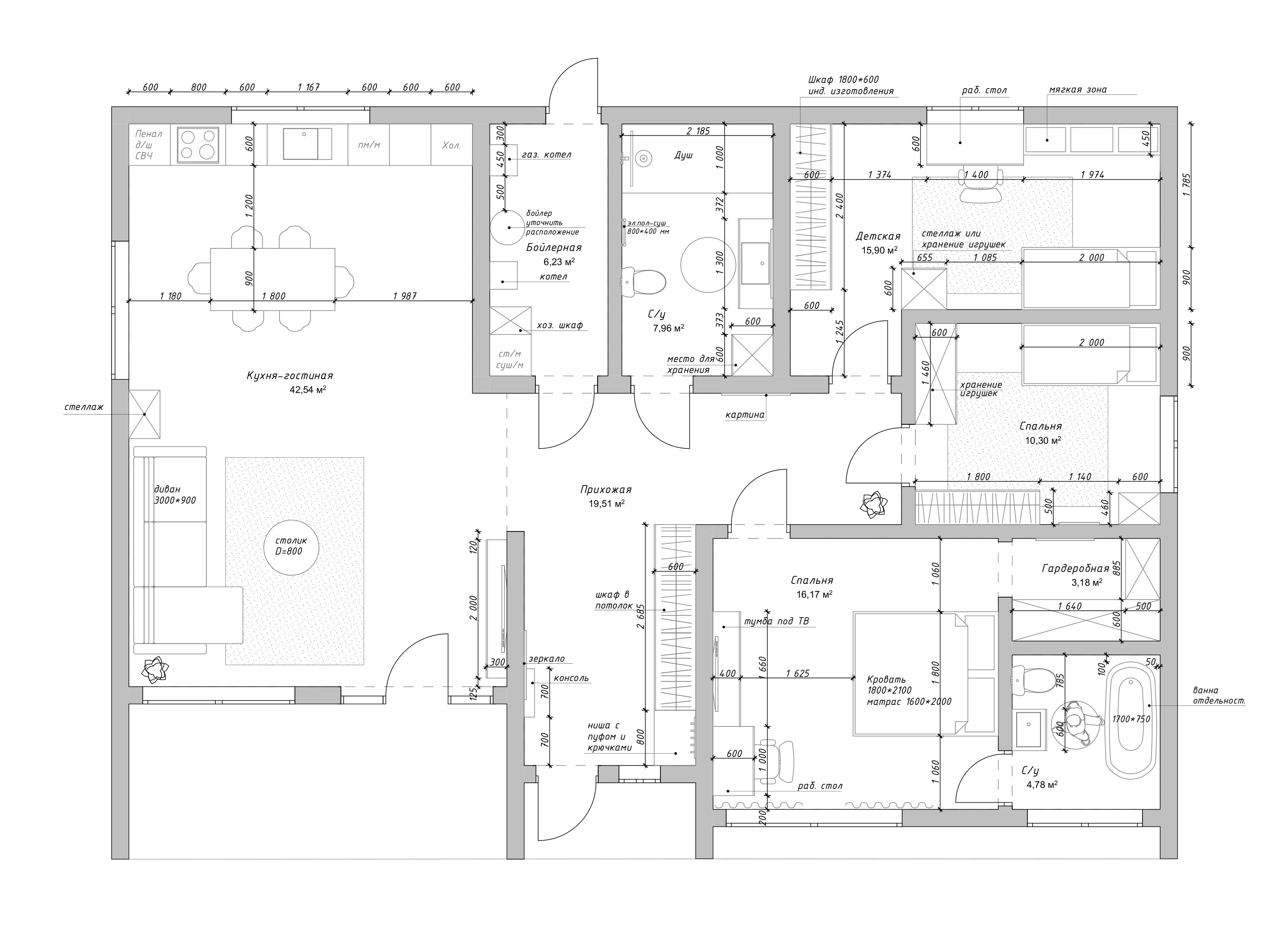
В планировке нашего уютного загородного дома мы учли все пожелания заказчика: просторная кухня-гостиная, две светлые детские комнаты и роскошная мастер-спальня с индивидуальной ванной комнатой и просторной гардеробной.
Кухня-гостиная и коридор
При входе в дом нас встречает просторный шкаф для одежды с нишей, оформленной элегантными реечными панелями. Напротив — большое зеркало в пол, которое зрительно расширяет пространство.
Кухня-гостиная с панорамными окнами выглядит невероятно светло и просторно. Мы спроектировали кухню в современном темно - графитовом цвете, с акцентным фартуком, имитирующим текстуру дерева. В зоне гостиной использованы стеновые панели из деревянных реек, что создает плавный переход между кухней и гостиной. Уютная атмосфера дополнена декором и текстилем в зеленых природных оттенках.
Мастер-спальня (спальня, ванная и гардеробная)
Стена за кроватью оформлена интересной композицией, сочетающей деревянные панели, декоративную графитовую штукатурку и черные молдинги. Она плавно переходит в гардеробную, выполненную в дереве с открытым хранением, что добавляет пространству легкости и воздуха. Напротив кровати расположена функциональная рабочая зона с подвесными полочками и тв тумбой. В личной ванной комнате заказчики пожелали установить отдельностоящую ванну напротив большого панорамного окна, что придает пространству особое очарование. Помещение светлое, просторное и наполнено воздухом.
Детская комната мальчика и девочки
Дизайн детской комнаты мы построили на контрасте светлой основной отделки и яркой акцентной мебели в терракотовом цвете, которую при желании можно будет легко обновить в будущем. Учитывая увлечение нашего юного заказчика баскетболом, мы интегрировали в интерьер кольцо на стене и выделили целую стену для полок с мячами, создавая пространство, которое вдохновляет на активные игры и спорт.
В детской комнате для дочки мы продолжили тему терракотового цвета, используя его в текстиле и стеллаже для игрушек. Чтобы добавить интерьеру мягкости и уюта, мы включили в дизайн детали, такие как круглый ковер, настенное зеркало с плавными формами, прикроватный столик и минималистичное бра, гармонично вписывающееся в атмосферу комнаты.
Душевая комната
В отличие от ванной, душевую мы оформили в темных оттенках, гармонично сочетая дерево и темно-графитовый цвет, который присутствует по всему дому. Мы предусмотрели просторную душевую зону, чтобы процесс принятия душа был максимально комфортным. Открытый стеллаж и подвесной светильник стали яркими акцентами, добавляя интерьеру стильную изюминку.
Оставьте заявку, и получите бесплатную консультацию + расчет стоимости вашего дизайн-проекта
Заполните короткую форму. Мы свяжемся с вами и проконсультируем по всем вопросам
LITA INTERIOR
НАВИГАЦИЯ
СОЦ СЕТИ
КОНТАКТЫ
LITA INTERIOR
Не является публичной офертой. Все материалы данного сайта являются объектами авторского права (в том числе дизайн). Запрещается копирование, распространение (в том числе путем копирования на другие сайты и ресурсы в Интернете) или любое иное использование информации и объектов без предварительного согласия правообладателя. *Instagram / Facebook — проект Meta деятельность которой в России запрещена.
© LITA INTERIOR

