Город
Екатеринбург
Площадь
57 м2
Год
2025 год
Услуги
Дизайн-проект и комплектация

Анастасия


О проекте
Гармония стиля: интерьер для современной девушки с характером.
Представляем вашему вниманию уютный проект квартиры в ЖК “Парк столиц”, где каждая деталь отражает личность молодой заказчицы с её яркими увлечениями и нестандартным подходом к жизни.
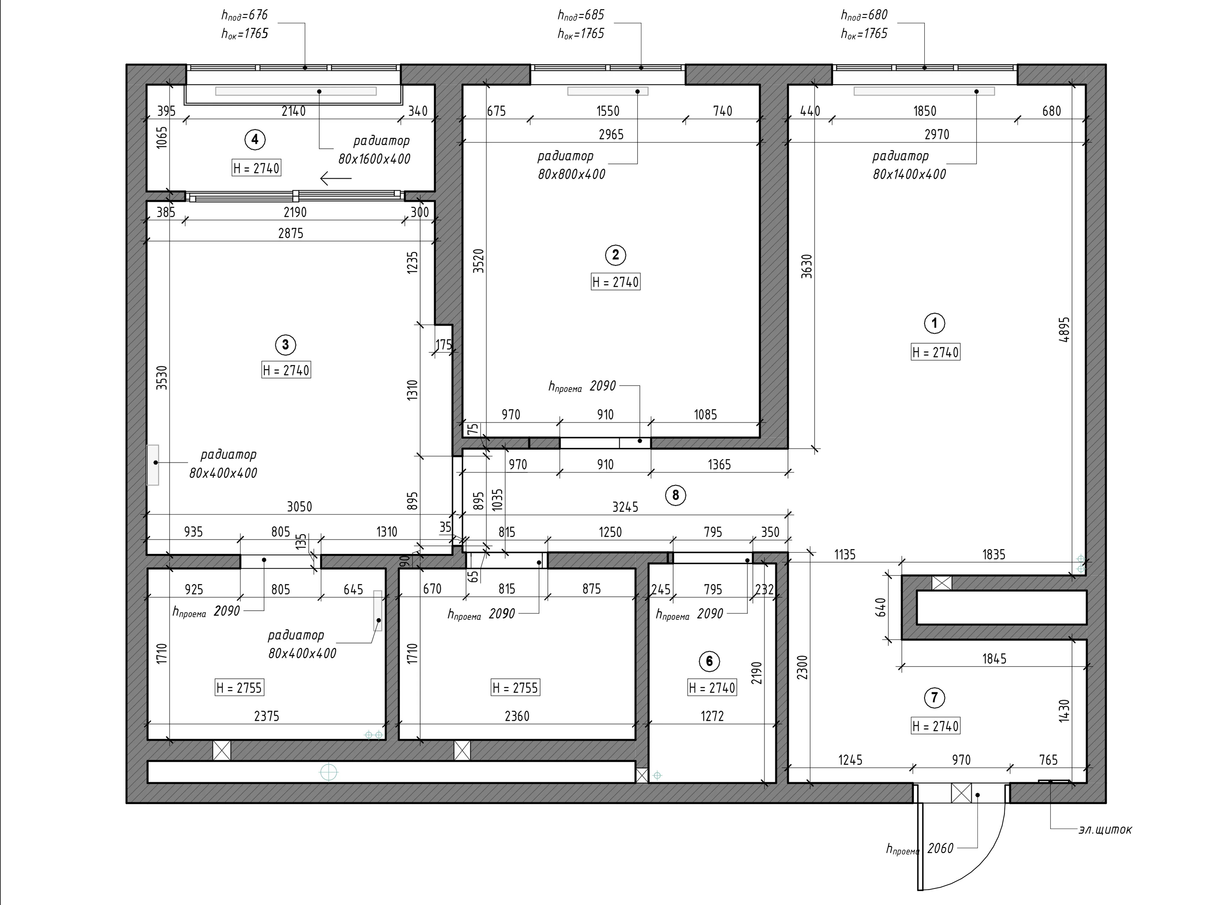
Продуманная планировка учитывает пожелания заказчицы об отсутствии дверей. Однако, мы сделали их в постирочную комнату и санузел, где они необходимы по функциональным причинам. В остальных помещениях спроектированы проемы в потолок. Мы демонтировали перегородку в санузеле и организовали одну большую ванную комнату.
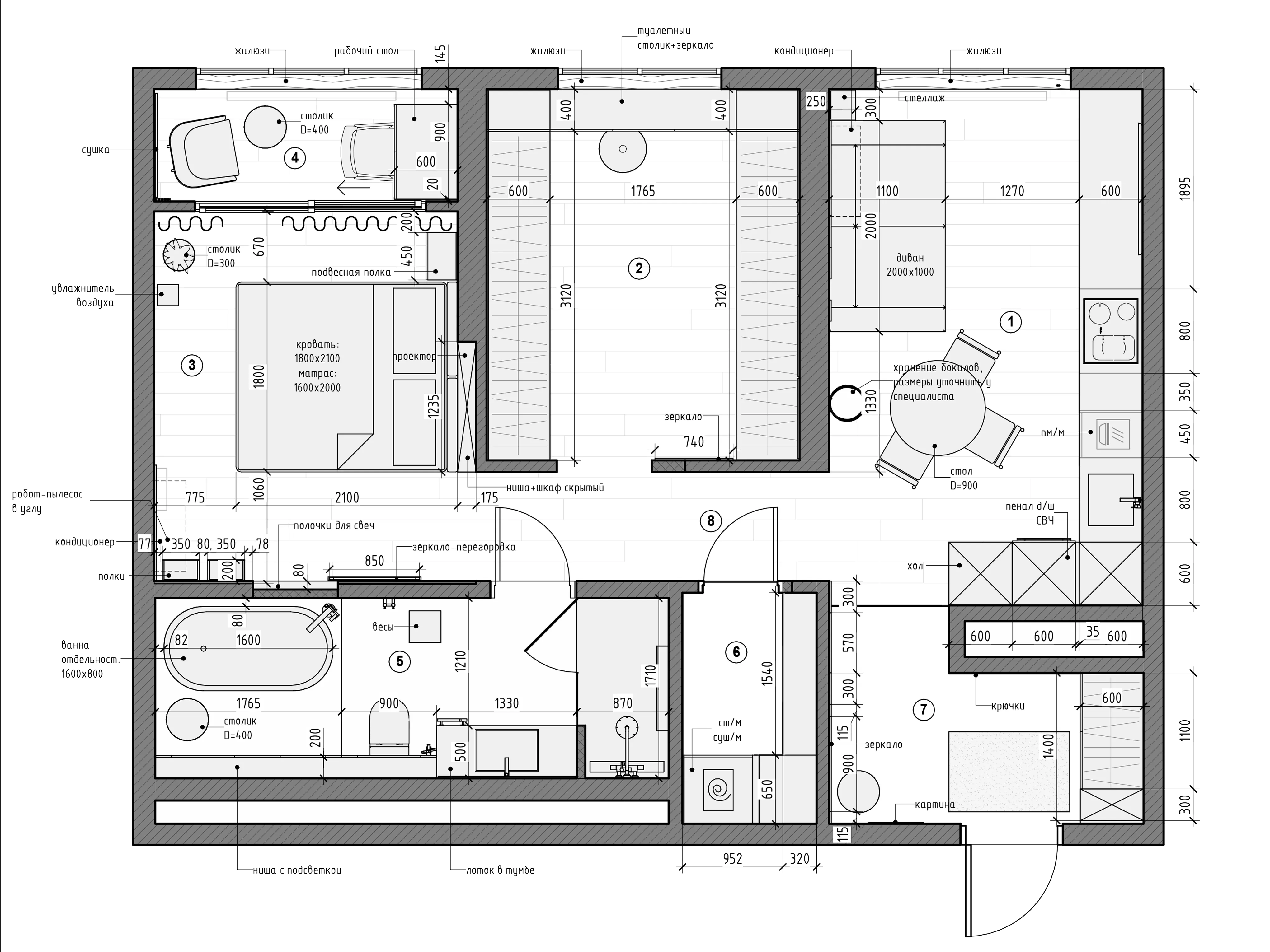
Кухня-гостиная
Интерьер наполнен интересными деталями, отражающими увлечения хозяйки. На кухне установлен оригинальный стеллаж в форме пули – отсылка к страсти заказчицы к стрельбе. По запросу мы спроектировали кухню во всю стену без верхних шкафчиков, а также предложили фартук до потолка из плитки, которая также повторяется между деревянными панелями за диваном, что стилистически объединяет пространство кухни. Мы покрасили все окна и радиаторы в темно-графитовый цвет, что сделало интерьер более современным и дорогим.
Спальня и гардероб
В спальне разместился стеллаж для коллекции моделей гоночных машин. Напротив кровати был запрос на пустую стену для проектора. А за кроватью мы использовали нишу под дополнительный шкафчик. Мы задействовали целую комнату под большую гардеробную, в которой даже предусмотрено специальное место для хранения короны – дань титулу мисс, которым гордится хозяйка. Каждый шкаф был спроектирован под определенное назначение.
Коридор
Особое внимание уделено сохранению пространства – потолки опущены минимально, ровно настолько, чтобы вместить встроенные точечные светильники. Исключение составляет только коридор, где техническая необходимость установки приточно-вытяжной системы потребовала большего опуска. Здесь мы продолжили использовать деревянные панели, в которые установили вертикальные подсветки для локального освещения.
Ванная комната
Особого внимания заслуживает санузел, где удалось создать функциональное решение: ванная и душевая зоны расположились в одном помещении. Отдельностоящая ванна установлена на подиуме, что добавляет интерьеру особый шарм и практичность. А напротив неё - большая система шкафчиков с открытой нишей для хранения мыльных принадлежностей. Мы предусмотрели лоток для кошки в тумбе, с доступом справа, что показывает наш индивидуальный подход к проектированию
В постирочной мы также предложили встроенные сушки для белья- вертикальную и горизонтальную между стиральной и сушильной машинами. Мебель мы выполнили под дерево, как в остальных помещениях.
Оставьте заявку, и получите бесплатную консультацию + расчет стоимости вашего дизайн-проекта
Заполните короткую форму. Мы свяжемся с вами и проконсультируем по всем вопросам
LITA INTERIOR
НАВИГАЦИЯ
СОЦ СЕТИ
КОНТАКТЫ
LITA INTERIOR
Не является публичной офертой. Все материалы данного сайта являются объектами авторского права (в том числе дизайн). Запрещается копирование, распространение (в том числе путем копирования на другие сайты и ресурсы в Интернете) или любое иное использование информации и объектов без предварительного согласия правообладателя. *Instagram / Facebook — проект Meta деятельность которой в России запрещена.
© LITA INTERIOR

