Город
Верхняя Пышма
Площадь
57 м2
Год
2020 год
Услуги
Дизайн-проект и комплектация

Алексей и Эля


О проекте
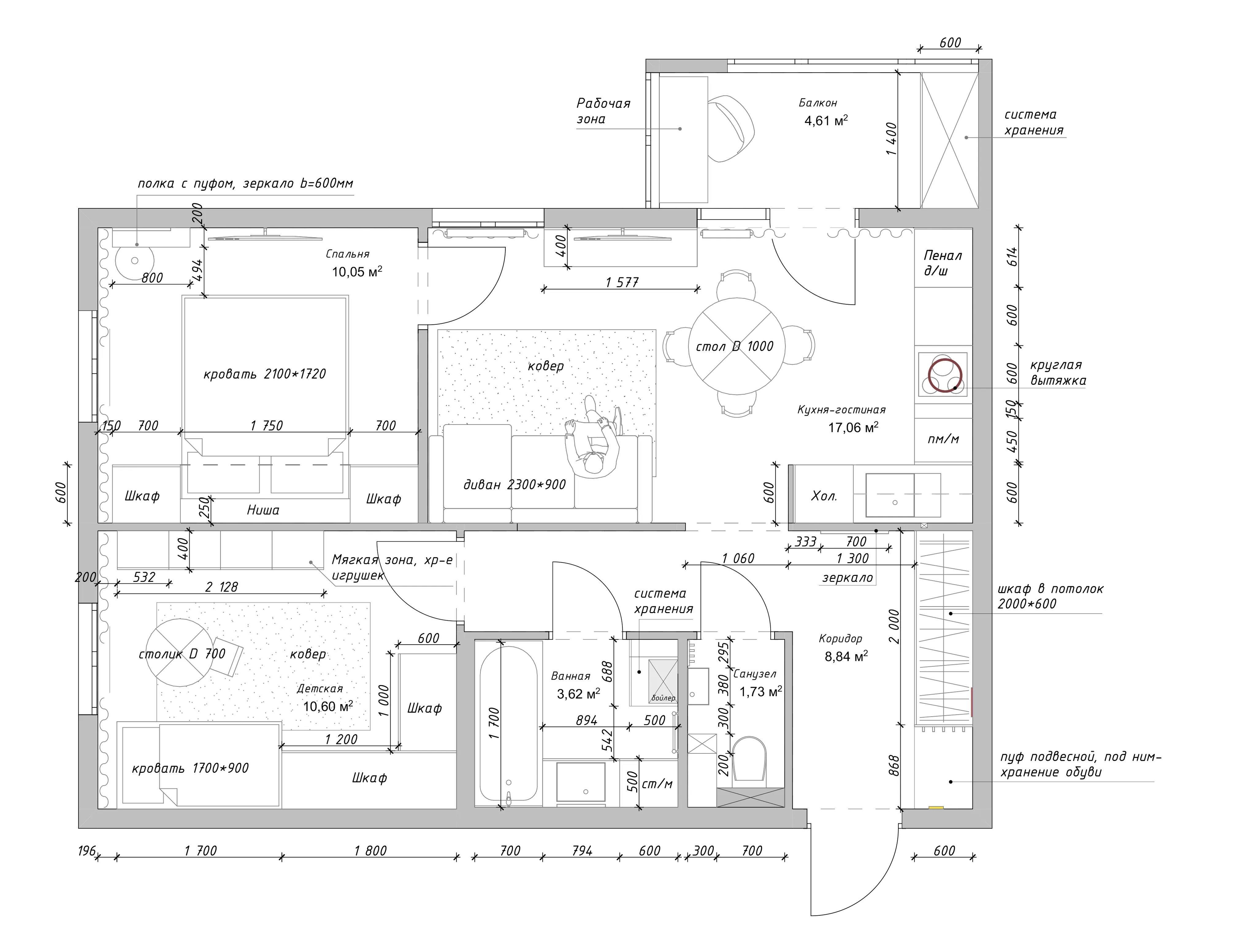
Квартира для молодой семьи - это небольшая городская квартира, предназначенная для молодых родителей и их дочери Анны.
При проектировании данного дизайн-проекта перед нами стояли две важные задачи. Первым делом, мы совместили зону кухни и гостиной, тем самым получили одно цельное пространство и два небольших - по 12 м2. Также, нам удалось увеличить пространство в коридоре, так мы сделали входную зону функциональной и аккуратной. Кроме того, мы спроектировали рабочее место на балконе.
Кухня-гостиная
Вход в помещение мы оформили высокой круглой аркой, чтобы не закрывать пространство и оставить ощущение воздуха. По оси входа мы разместили красивый круглый стол, над которым расположен светильник. Также, входя в комнату, мы сразу обращаем внимание на стену с тв зоной, поэтому мы решили декорировать ее стеновой панелью под покраску. Так как квартира небольшая - все выполнено в светлых тонах, однако изюминкой этого пространства стала стена-фартук в яркой черной плитке.
Спальня
В спальне нам нужно было предусмотреть хранение большого количества вещей, поэтому было решено сделать кровать в нише из шкафов, даже верхние шкафчики очень функциональны и вместительны, однако не потребовали много места. Задняя панель ниши выполнена в дереве и подчеркнута теплой линейной подсветкой.
Так как в данной концепции не было возможности разместить прикроватные тумбы, мы сделали полку за кроватью, на которой удобно располагать личные вещи.
Ванная комната
В данной квартире нет отдельного хозяйственного помещения, поэтому мы расположили стиральную машинку в ванной комнате под столешницей. В отделке использовали плитку из салона Italon. В гостевом санузле мы спроектировали маленький рукомойник и стеллаж для мыльных принадлежностей.
Балкон
В условиях ограниченного пространства квартиры было решено использовать балкон как функциональное рабочее место и зону дополнительного хранения благодаря установке вместительного шкафа и чёрных жалюзи, обеспечивающих изоляцию от окружающего мира.
Оставьте заявку, и получите бесплатную консультацию + расчет стоимости вашего дизайн-проекта
Заполните короткую форму. Мы свяжемся с вами и проконсультируем по всем вопросам
LITA INTERIOR
НАВИГАЦИЯ
СОЦ СЕТИ
КОНТАКТЫ
LITA INTERIOR
Не является публичной офертой. Все материалы данного сайта являются объектами авторского права (в том числе дизайн). Запрещается копирование, распространение (в том числе путем копирования на другие сайты и ресурсы в Интернете) или любое иное использование информации и объектов без предварительного согласия правообладателя. *Instagram / Facebook — проект Meta деятельность которой в России запрещена.
© LITA INTERIOR

