Город
Екатеринбург
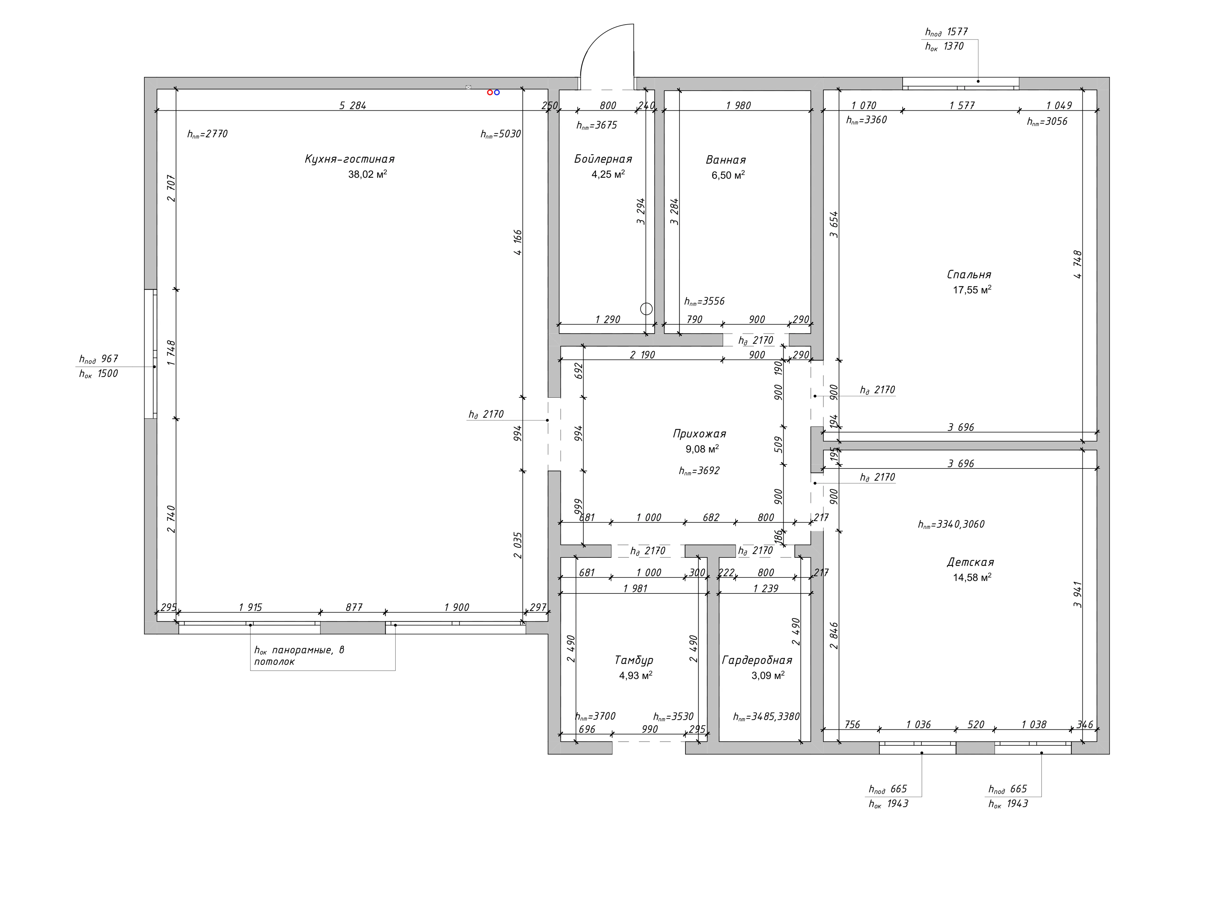
Площадь
98 м2
Год
2022 год
Услуги
Дизайн-проект

Шахзод и Юлия




О проекте
Дом каркасной конструкции с панорамными окнами, создающими ощущение простора и единения с природой. В некоторых помещениях использована вагонка под покраску, что добавляет интерьеру тепла и уюта. Также мы применили декоративную штукатурку и металлические молдинги, которые придают пространству современный и изысканный вид.
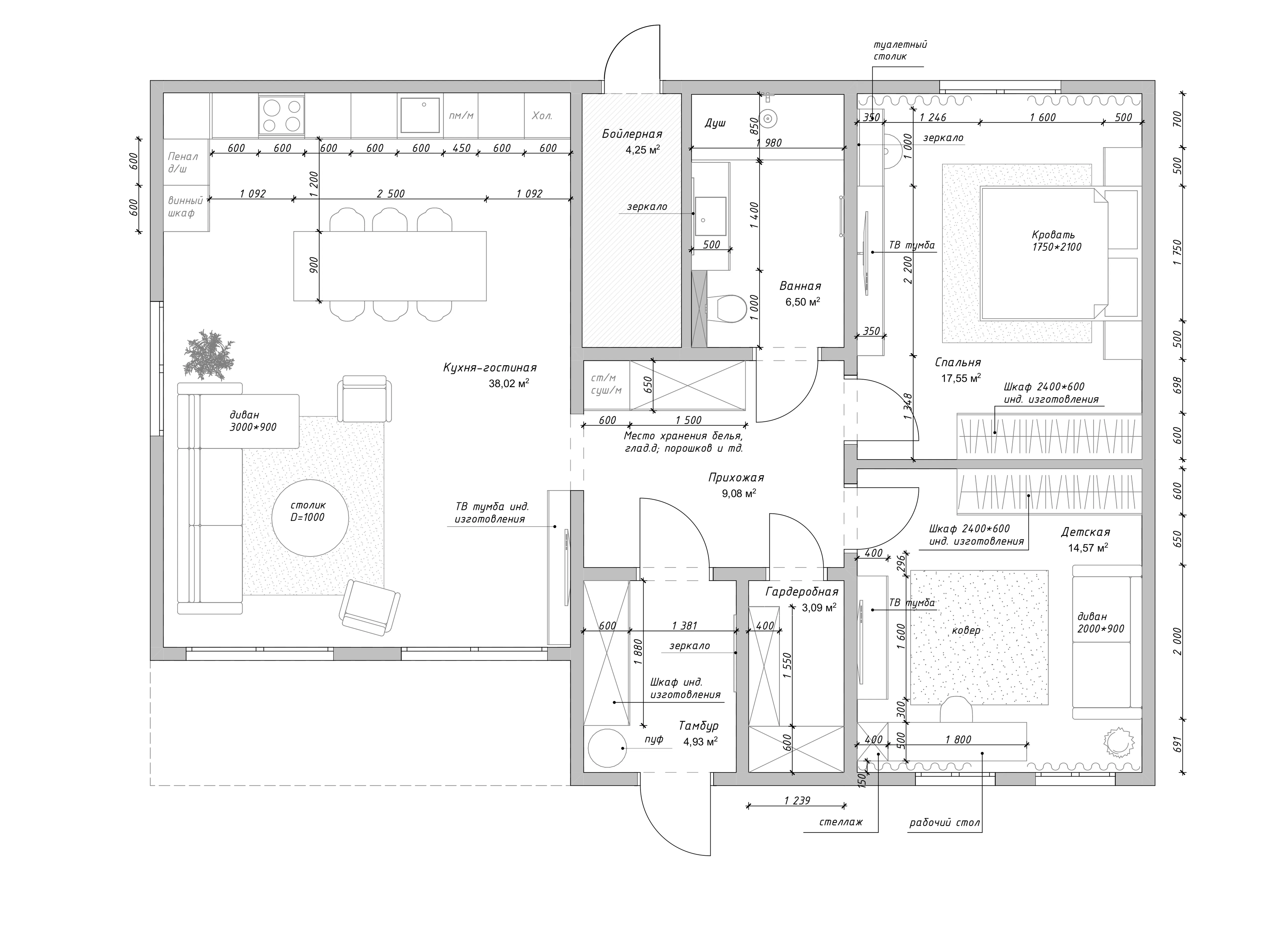
Тамбур и прихожая
Тамбур и прихожая оформлены в той же цветовой гамме, что и кухня-гостиная, обеспечивая единое стилевое решение для всего дома. В тамбуре установлен вместительный шкаф для хранения верхней одежды и обуви. В прихожей удалось разместить пеналы для стиральной и сушильной машин, что позволило рационально использовать пространство.
Кухня-гостиная
В глубине комнаты расположен большой угловой кухонный гарнитур. В этой части кухни мы отказались от верхних шкафчиков, чтобы сохранить ощущение легкости и свободного пространства. Центральное место занимает обеденный стол, вокруг которого организовано удобное пространство для приема пищи. Латунный подвесной светильник над столом стал настоящей изюминкой интерьера, добавляя ему элегантности.
Зона отдыха представлена диваном и двумя креслами темно-зеленого цвета, расположенными по бокам. Между ними находится журнальный столик из темного дерева, а напротив – тв-тумба. Все предметы мебели выполнены в современном стиле, который сочетается с нейтральной цветовой гаммой: серые, бежевые и зеленые оттенки создают спокойную и гармоничную атмосферу. Естественное освещение, проникающее через большие панорамные окна, делает помещение светлым и уютным.
Спальня
Спальня получилась лаконичной и функциональной. Чтобы сохранить ощущение воздушности, мы выбрали стеклянный шкаф, который не загромождает пространство. Одну из стен за кроватью сделали акцентной, используя декоративную штукатурку более темного оттенка. Это добавило комнате глубины и индивидуальности.
Детская комната
Для детской комнаты был запрос на универсальное пространство, которое могло бы служить одновременно детской, кабинетом и игровой зоной. Мы выбрали благородное сочетание природного зеленого оттенка и натурального дерева, что создает уютную и спокойную атмосферу. Особое внимание уделили организации хранения: было предусмотрено множество ящиков и полок, чтобы все члены семьи могли удобно размещать свои вещи. Такой подход позволяет максимально эффективно использовать пространство и сделать его комфортным для всех.
Ванная комната
Санузел выполнен в сером керамограните, а зона душа исполнена в акцентной плитке под дерево. При сохранении минимализма мы предложили скрытую душевую стойку и светильник над тумбой, который подчеркивает высоту помещения. На темном фоне выигрышно смотрится белая тумба со скрытой ручкой.
Оставьте заявку, и получите бесплатную консультацию + расчет стоимости вашего дизайн-проекта
Заполните короткую форму. Мы свяжемся с вами и проконсультируем по всем вопросам
LITA INTERIOR
НАВИГАЦИЯ
СОЦ СЕТИ
КОНТАКТЫ
LITA INTERIOR
Не является публичной офертой. Все материалы данного сайта являются объектами авторского права (в том числе дизайн). Запрещается копирование, распространение (в том числе путем копирования на другие сайты и ресурсы в Интернете) или любое иное использование информации и объектов без предварительного согласия правообладателя. *Instagram / Facebook — проект Meta деятельность которой в России запрещена.
© LITA INTERIOR

